WORKS
間取り相談/コンサルティングリフォーム・リノベーション


中古購入前の間取り相談と、購入後の工務店向け図面作成
2024-12-22
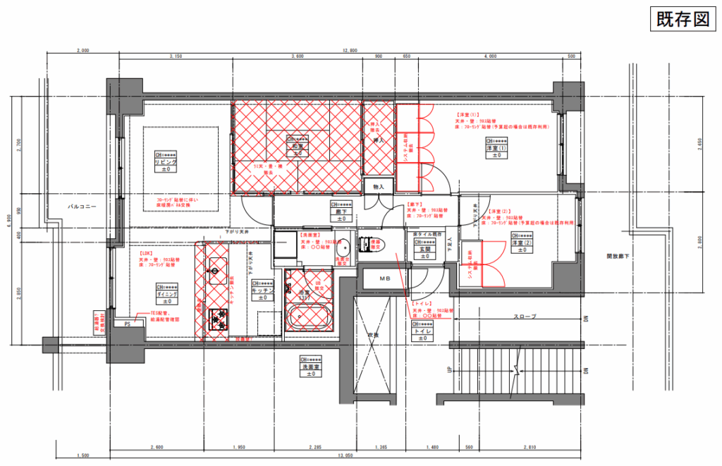
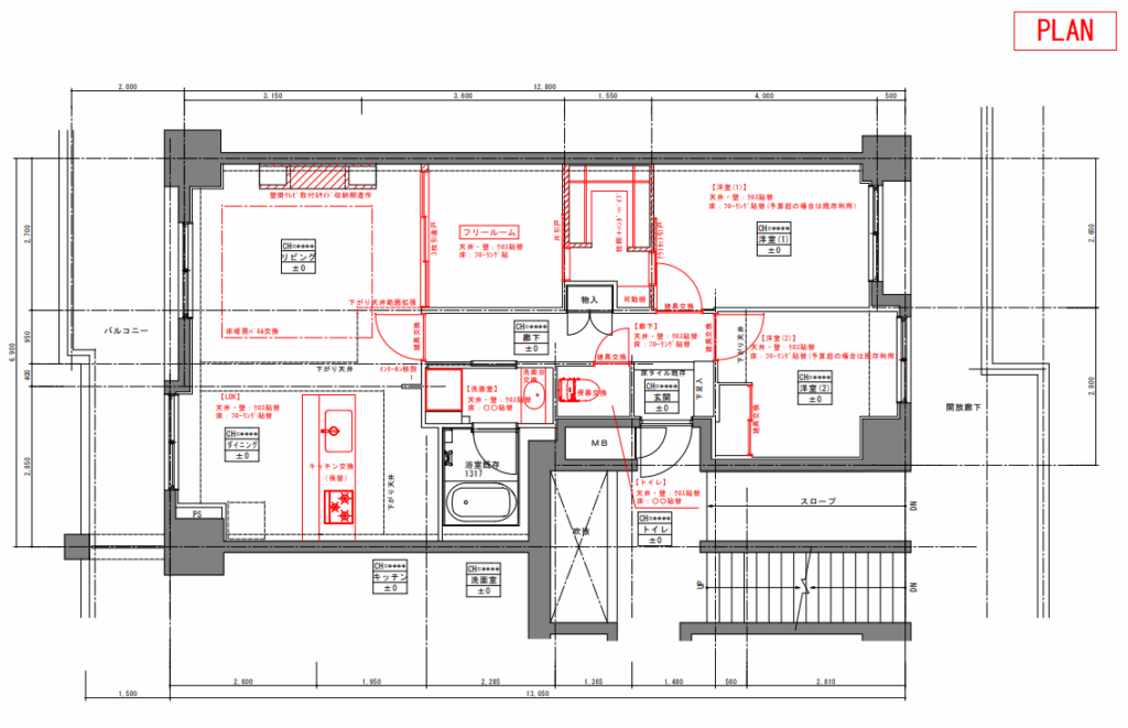
中古マンションは、ご家族の希望する条件にピッタリの物件が見つかれば、それは一点物の価値があります。
ただ、間取りがどこまで変えられるか、リフォーム費用はローンに組み込めるのか、希望する時期に引き渡しや工事完了できるのか、いろいろと不安があると思います。
そんなお悩みにお応えして、購入段階から工務店への依頼まで、第3者としてご相談をお受けし、伴走サポートさせていただいた案件です。


・物件購入前の間取り相談
・配管や構造など技術的な検討
・購入決定前後の工務店への見積り依頼
・工事見積りの確認
・施工用の詳細なお図面の作成
などをサポートさせていただきました。
お客様の声
マンションリノベーションの間取りのご相談をしました。
とても親身に相談にのっていただきました。
情報量も多くアドバイスが的確で、経験豊富な方なので、安心して相談できました。
業者にお願いする前の壁打ちや、見積もり依頼の資料作成などを迅速に対応いただき、大変助かりました。
